** Pender Co Imagine 2050 Community Engagement Meeting- 9/25 6 -8 PM See Calendar **
** Pender Co Imagine 2050 Community Engagement Meeting- 9/25 6 -8 PM See Calendar **

A fallen tree marking a Conservation Easement Boundary in the area by Abbey Nature Preserve.
* TRC Meeting 8/1/2024 *
A 228 home community is being proposed by Clayton Properties Group, Inc. It will be located off of North Scotts Hill Loop in the area of the former Humble Roots Farm as well as the field between Oakvale, Foy Plantation, and Scottsdale communities.
The Technical Review Committee (TRC) meeting will be held
Thursday, August 1, 2024
at 9:00 AM - 11:00 AM
Administration Building
805 Walker Street
Public Assembly Room
Burgaw, NC 28425
* Paused *
The proposed development is at the corner of North Scotts Hill Loop and Highway 17. The Circle K is to consist of a 5200 sq ft super convenient store, 14 pumps, and a car wash. Currently a tree ordinance has the project paused.
** In Progress as of 9/2023**
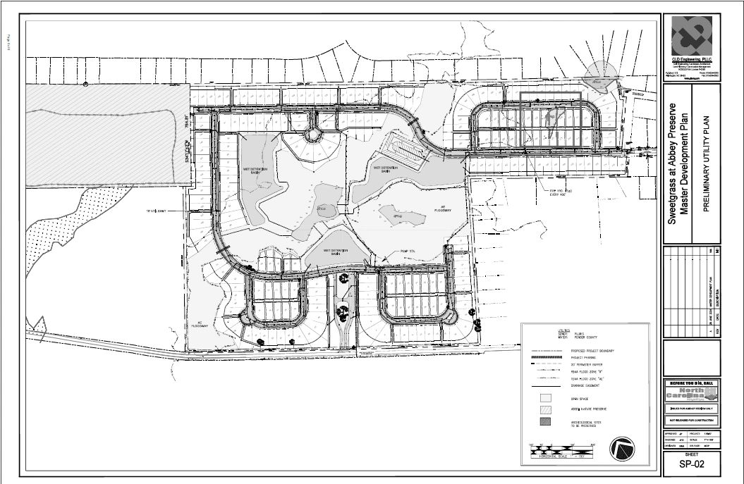
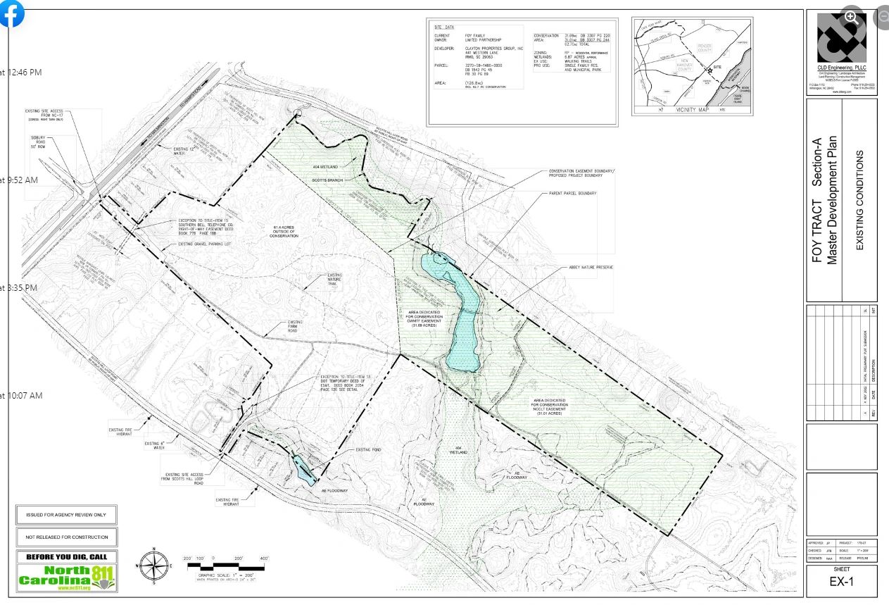
The 65 acres formerly used to access Abbey Nature Preserve, is now under development for 137 homes. Once complete, the entrance to Abbey Nature Preserve will be moved to the south Scotts Hill Road entrance of Indigo.
Access to Abbey Nature Preserve has been changed to a temporary location accessible from the south side of Scotts Hill Loop Road. The 63 acres that is designated as Abbey Nature Preserve will remain untouched under the NC Coastal Land Trust.
** Construction Underway **
New Hanover County is proposing a satellite hospital to be built at the corner of Highway 17 and South Scotts Hill Loop Road. Based on a Star News article dated 2/1/2022, it will be a 66-bed facility focusing on orthopedic services but will provide general surgery and other services.
** Construction Underway **
Currently 240 apartments have been built. Phase 2 which is currently underway will be an additional 3 buildings for 72 additional apartments. Then phase 3 will be 130 townhomes.
** Clearing / Construction Underway **
Silo Ridge is a subdivision of 316 lots. The Towns at Blake Farm will be 154 townhome apartments. A third project at Blake Farms is Oak Grove (no Oaks left!) is a senior community of 183 apartment units.
** Construction Underway **
This project is proposed in front of Whitebridge and will consist of 125 townhomes.
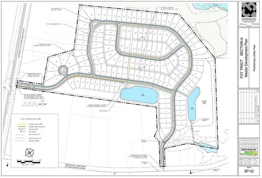
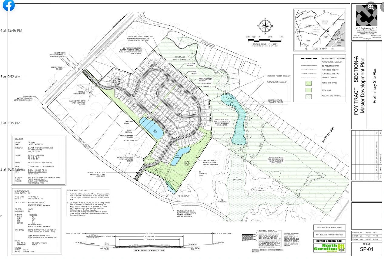
Clayton Properties is proposing 228 homes to be built in 3 phases. The current proposed plans and flood map for the area are shown below. Link to agenda information for 8/1/2024 TRC meeting.



The proposed development site is at the corner of North Scotts Hill Loop and Highway 17. An entrance/exit will be on both Highway 17 and North Scotts Hill Loop Road adding to an extremely over congested area.
Currently the obstacle for the developer is satisfying Section 8.1.3, Significant Tree Survey, in the Unified Development Ordinance for Pender County.
The currently proposed Circle K will be a 5200 sq ft super-convenient store with 14 pumps and a single car wash. They are having difficulty with the drop in elevation (32 feet to 15 feet) on the property as well the area required for the retention pond restricting the amount of trees they can save or replant.
In an upcoming variance meeting (date to-be-determined), the applicant and owner, Pope Properties, will be requesting a variance for relief. The request, Variance 2022-14, is to reduce the number of required mitigated trees on the subject property and to plant the remaining trees required at an offsite location and/or offer payment in lieu of planting offsite to the County.
The subject property is located within the GB, General Business, zoning district. The property may be further identified by Pender County PIN(s) 3271-41-0365-0000, 3271-41-3641-0000, 3271-41-4387-0000, 3271-41-2253-0000.
The agenda packet from the meeting on 2/15/2023 can be found here.
The Ordinance can be located on the Pender County Government website (https://www.pendercountync.gov/). To locate it, select ‘Planning and Community Development’ under Departments and Divisions and a link to the Unified Development Ordinance is provided in the lower left corner.

Proposed plans submitted by Pope Properties.


The detention pond for the Circle K is proposed to be directly across from this property already damaged during significant rain storms.

Erosion in the same area.
On December 1st, 2022 a Pender County Technical Review Board meeting was held to discuss the plans for the first phase of Mungo Homes to be built.
The road next to Poplar Grove Plantation which currently leads to the trailhead for Abbey Nature Preserve, will become the entrance to the new homes in this first phase. The trailhead for Abbey Nature Preserve will be moved. A public meeting will be held at a future date by Pender County Parks and Recreation to discuss the relocation of the trailhead.
While the 63 acres of Abbey Nature Preserve is in a NC Coastal Land Trust and will not be developed, the 65 acres of paths currently leading to the preserve will be clear-cut to build 137 homes.
The new development will be directly behind Cross Point Center, Scotts Hill Baptist Church, and adjacent to the stables at Poplar Grove Plantation. The area being developed also includes a major section of the Old Farm Road which has been designated as the northern most point of the Gullah Geechee Cultural Heritage Corridor.
Additional phases to develop the 115 acres, formerly Humble Roots Farm on South Scotts Hill Loop Road and the plantation fields, have not yet been shared with the public.
Additional information presented to the Pender County Technical Review Board can be found at this link here.






Copyright © 2024 Save Scotts Hill - All Rights Reserved.
Powered by GoDaddy